드디어 군산호수공원 아이파크가 청약하네요
단지 이름부터 호수공원!! 군산 호수공원은 드넓은 조망을 누릴 수 있는 입지적 특징을 갖춘 곳입니다.
한번 호수공원에 대해 자세히 알아봅시다.
입지환경

그린인프라
약 257만㎡ 규모의 은파호수공원, 새들공원, 군산 수송공원 등
생활인프라
롯데마트, 예술의 전당, CGV, 군산의료원 등
교육인프라
도보 통학 가능한 초·중교, 단지 인접 학원가, 도서관 등
교통인프라
새만금북로, 공단대로, 월명로 등
커뮤니티 시설 정보

어린이집·시니어라운지·게스트하우스·실내골프연습장·GX룸·휘트니스·키즈카페·파크라운지·독서실 등
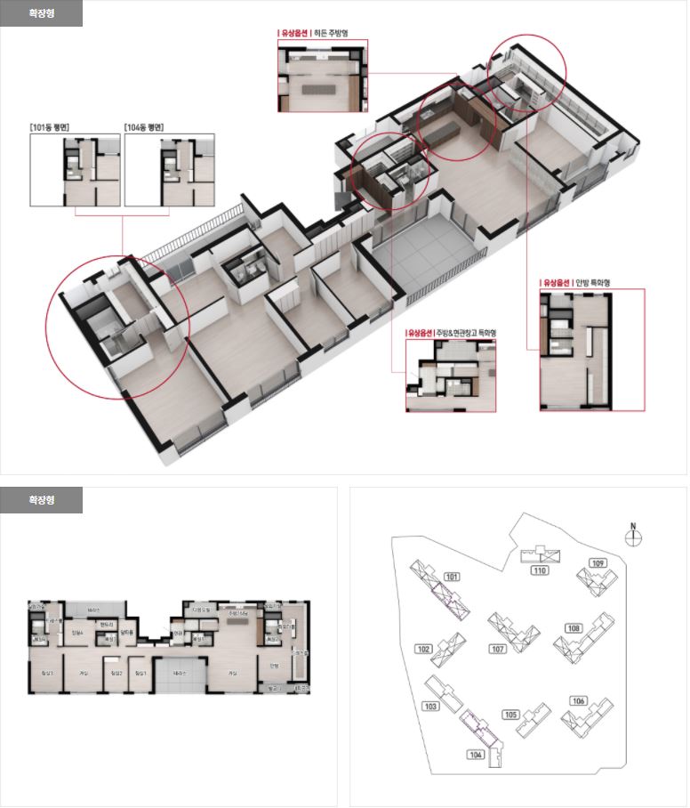
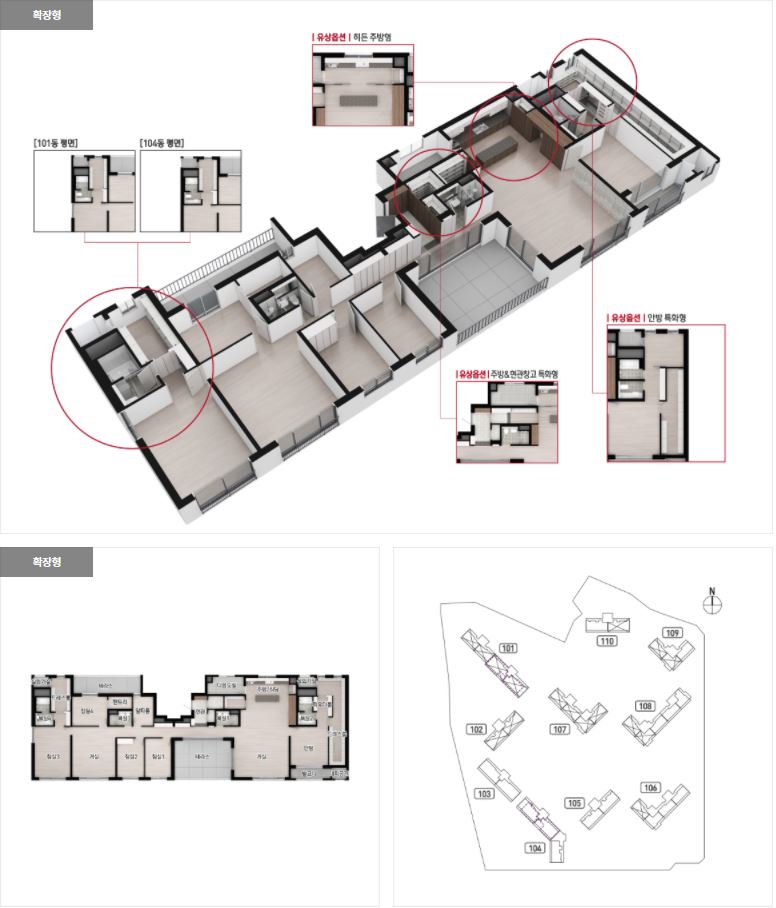
단지 및 동호수 배치도


군산호수공원 아이파크 위치
전북 군산시 지곡동 산 66번지 일원
입주시기
2024년 1월 예정
공급규모
아파트 지하 3층 ~ 지상 29층 아파트 10개 동 총 665세대 및 부대복리시설

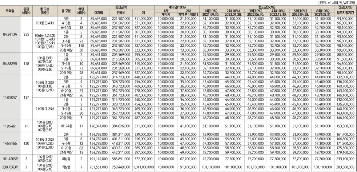
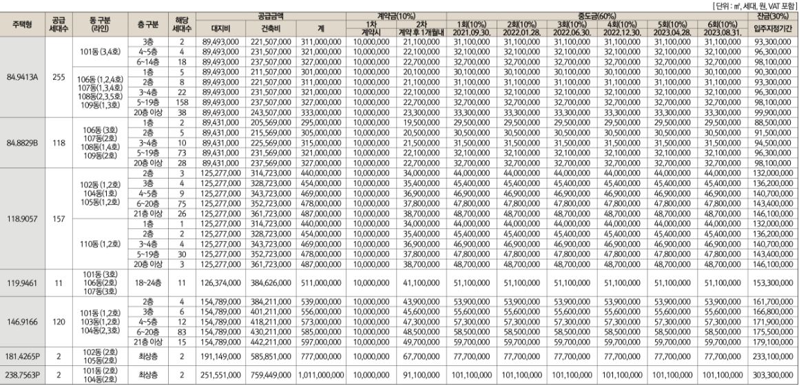
분양가

분양일정

특별공급
일반(기관추천), 다자녀, 신혼부부, 노부모 부양, 생애최초
2021년 5월 31일 월요일

일반공급
1순위 2021년 06월 01일 화요일
2순위 2021년 06월 02일 수요일
신청방법
인터넷 청약(08:00~17:30)
한국 부동산 청약 Home (www.applyhome.co.kr)
당첨자 발표
2021년 06월 08일 화요일
자격검증 서류제출(당첨자 적격여부 확인)
2021년 06월 12일 ~ 2021년 06월 17일
일반공급 신청자격
- 최초 입주자 모집공고일 현재 군산시에 거주하거나 전라북도에 거주하는 만 19세 이상인 자 또는 세대주인 미성년자(자녀양육, 형제자매 부양)중 입주자저축 순위별 자격 요건을 갖춘 자.
단, 청약 신청자 중 같은 순위 내에서 경쟁이 있는 경우에는 군산시 1년 이상 계속 거주자가 우선
- 1순위 : 1순위 청약자는 가점제, 추첨제 선택 청약이 불가하며 주택 소유 여부에 따라 분류되며, 가점제 낙첨자는 별도 신청절차 없이 추첨제 대상자로 전환
- 전용면적 85㎡이하 : 일반공급 세대수의 40%를 가점제로, 나머지 60%는 경쟁이 있을 경우 추첨제 적용
- 전용면적 85㎡초과 : 일반공급 세대수의 100%를 추첨제 적용
- 2순위 : 청약 신청자 전원 추첨제로 진행
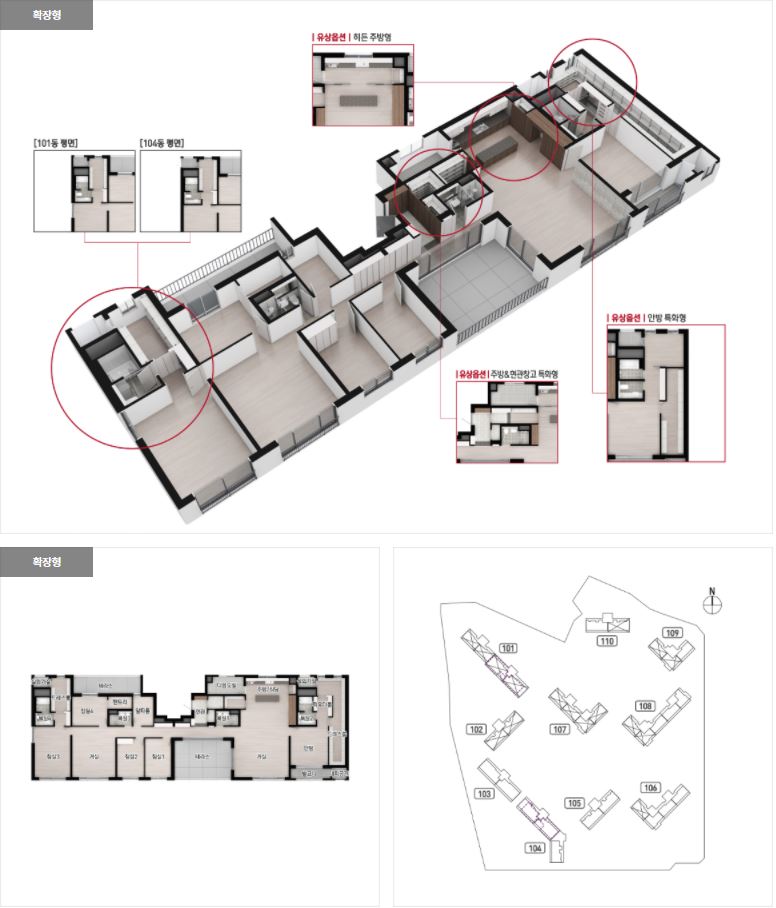
평면도
84A 평방미터 255세대

84B 평방미터 118세대

118평방미터 157세대

119 평방미터 11세대

146 평방미터 120세대

181(PH) 평방미터 2세대

238 평방미터 2세대

'잡다구리' 카테고리의 다른 글
| 보라매 SK뷰 계약 취소분(줍줍) 분양 (0) | 2021.05.27 |
|---|---|
| 잔여백신 당일예약 - 카카오, 네이버로 하세요! (0) | 2021.05.25 |
| 평택역 SK뷰(VIEW) 청약 정보(평면도, 입지환경, 임대료, 일정) (0) | 2021.05.24 |
| 전기차 환경부 카드 및 할인카드 발급 받기(+신한EV카드) (0) | 2021.05.24 |
| 철구 이혼?? 아내 외질혜 불륜 폭로(+BJ 지윤호) (0) | 2021.05.23 |
댓글